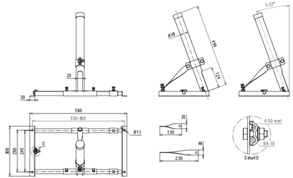
Mounting Bracket for Air-Termination Systems on Metal Roofs

Stainless steel mounting bracket for installing HVI air-termination systems or air-termination rods on metal roofs:

Mounting bracket suitable for vertical mounting of air-termination systems on metal roofs with a max. roof slope of up to 53°.

The mounting bracket for air-termination systems on metal roofs can be mounted on suitable, stable substructures. The mounting bracket for air-termination systems on metal roofs is designed for up to 320 Nm initial torque.

For fixing Ø40/50 air-termination rods and for top-mounting HVI light plus and HVI supporting tubes with inside conductor routing.

Note: Mounting conditions on site must be clarified with the builder.

1 Product

Part No. 105241 MDH D48 VB550.900 V2A

GTIN 4013364361225, Customs tariff No. (EU): 73089098, Gross weight: 5.26 kg, PU: 1.00 pc(s)


Images

Additional information

Mounting bracket (StSt) for air-termination systems on metal roofs
Mounting bracket for vertical installation of
HVI air-termination systems or air-termination rods
Material: StSt
Adjustment range: 550-900 mm
Roof inclination: 5-53°

Brand: DEHN
Type: MDH D48 VB550.900 V2A
Part No.: 105241
or equivalent.

 

Technical data

Material StSt
Adjustment range 550-900 mm
Roof inclination 5-53°
Standard EN 62561-1

Product 105241 was added to Notepad.

Product 105241 was added to the cart.


back to top